Teleskopický válec s vývrtem v nejmenším stupni, 2-stupňový, typ TC-F
Parametry produktu
| Popis výrobku | Teleskopický válec s vývrtem v nejmenším stupni, 2-stupňový, typ TC-F |
|---|---|
| Zvláštnosti | Povrchová úprava Tenifer TF1 |
| Použití |
|
| Vlastnosti |
|
Tento produkt má několik variant. Vyberte prosím konkrétní variantu z tabulky níže.
Dostupné varianty produktu
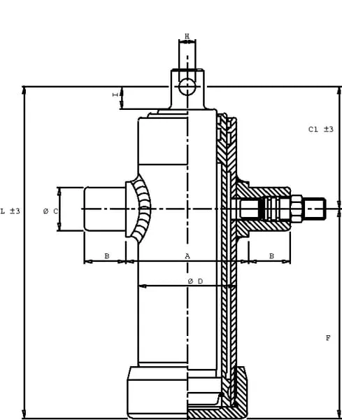
| Produkt | Košík | Cena | Zdvih | Značka | Hmotnost | Jednotka | Norma DIN | Použití | LMin. délka | Počet fází | Zvláštnosti | Kapacita oleje | Popis výrobku | Materiál válce | Průměr fáze 1 | Průměr fáze 2 | DVnější průměr | Kategorie použití | Max. pracovní tlak | Těsnicí materiál | Max. rychlost pístu | Max. kapacita – fáze 2 | BDélka připojení oleje | Max. kapacita při 180 bar | CPrůměr boční hřídele | Tvrdost podle Vickerse (HV) | Rozsah povrchové hrubosti pístu | Typ upevnění – připojení tyče | Typ upevnění – připojení válce | IVnější průměr montážního pouzdra | C1Vzdálenost připojení oleje ke konci tyče | HPrůměr montážního otvoru – připojení tyče | Průměr montážního otvoru – připojení válce | Vzdálenost středu montážního otvoru ke konci válce |
|---|---|---|---|---|---|---|---|---|---|---|---|---|---|---|---|---|---|---|---|---|---|---|---|---|---|---|---|---|---|---|---|---|---|---|
Teleskopický válec + oko
TC2021F
|
6 314,02 Kč
5 218,20 Kč bez DPH
|
525 mm | Di Natale-Bertelli | 14,5 kg | Kus | 1629 |
|
375 mm | 2 | Povrchová úprava Tenifer TF1 | 1,3 l | Teleskopický válec s vývrtem v nejmenším stupni, 2-stupňový, typ TC-F | Ocel S355J2+N | 46 mm | 61 mm | 80,5 mm | Teleskopické | 180 BAR | Polyuretan | 0,5 m/s | 5,2 t | 40 mm | 5,2 t | 35 mm | HV5/12=500/550 | 0.05-0.15 µm | Vývrt | Radiální čep | 24 mm | 100 mm | 26 mm | 40 mm | 275 mm | |
Teleskopický válec s okem 2-St
TC3023F
|
10 899,80 Kč
9 008,10 Kč bez DPH
|
695 mm | Di Natale-Bertelli | 23,3 kg | Kus | 1629 |
|
465 mm | 2 | Povrchová úprava Tenifer TF1 | 2,7 l | Teleskopický válec s vývrtem v nejmenším stupni, 2-stupňový, typ TC-F | Ocel S355J2+N | 61 mm | 76 mm | 95 mm | Teleskopické | 180 BAR | Polyuretan | 0,5 m/s | 8,1 t | 40 mm | 8,1 t | 35 mm | HV5/12=500/550 | 0.05-0.15 µm | Vývrt | Radiální čep | 32 mm | 105 mm | 31 mm | 40 mm | 360 mm | |
Teleskopický válec s okem 2-St
TC3024F
|
11 644,68 Kč
9 623,70 Kč bez DPH
|
795 mm | Di Natale-Bertelli | 25,3 kg | Kus | 1629 |
|
515 mm | 2 | Povrchová úprava Tenifer TF1 | 3 l | Teleskopický válec s vývrtem v nejmenším stupni, 2-stupňový, typ TC-F | Ocel S355J2+N | 61 mm | 76 mm | 95 mm | Teleskopické | 180 BAR | Polyuretan | 0,5 m/s | 8,1 t | 40 mm | 8,1 t | 35 mm | HV5/12=500/550 | 0.05-0.15 µm | Vývrt | Radiální čep | 32 mm | 105 mm | 31 mm | 40 mm | 410 mm | |
Teleskopický válec s okem 2-St
TC4026F
|
18 551,12 Kč
15 331,50 Kč bez DPH
|
895 mm | Di Natale-Bertelli | 36,5 kg | Kus | 1629 |
|
580 mm | 2 | Povrchová úprava Tenifer TF1 | 6,8 l | Teleskopický válec s vývrtem v nejmenším stupni, 2-stupňový, typ TC-F | Ocel S355J2+N | 88 mm | 107 mm | 124 mm | Teleskopické | 180 BAR | Polyuretan | 0,5 m/s | 16,1 t | 40 mm | 16,1 t | 40 mm | HV5/12=500/550 | 0.05-0.15 µm | Vývrt | Radiální čep | 35 mm | 115 mm | 36 mm | 40 mm | 465 mm | |
Teleskopický válec s okem 2-St
TC4027F
|
22 750,30 Kč
18 801,90 Kč bez DPH
|
1095 mm | Di Natale-Bertelli | 42,5 kg | Kus | 1629 |
|
680 mm | 2 | Povrchová úprava Tenifer TF1 | 8,3 l | Teleskopický válec s vývrtem v nejmenším stupni, 2-stupňový, typ TC-F | Ocel S355J2+N | 88 mm | 107 mm | 124 mm | Teleskopické | 180 BAR | Polyuretan | 0,5 m/s | 16,1 t | 40 mm | 16,1 t | 40 mm | HV5/12=500/550 | 0.05-0.15 µm | Vývrt | Radiální čep | 42 mm | 155 mm | 36 mm | 40 mm | 565 mm | |
Teleskopický válec s okem 2-st.
TC2020F
|
7 894,16 Kč
6 524,10 Kč bez DPH
|
455 mm | Di Natale-Bertelli | 14 kg | Kus | 1629 |
|
380 mm | 2 | Povrchová úprava Tenifer TF1 | 1,1 l | Teleskopický válec s vývrtem v nejmenším stupni, 2-stupňový, typ TC-F | Ocel S355J2+N | 46 mm | 61 mm | 80 mm | Teleskopické | 180 BAR | Polyuretan | 0,5 m/s | 5,2 t | 40 mm | 5,2 t | 35 mm | HV5/12=500/550 | 0.05-0.15 µm | Vývrt | Radiální čep | 27 mm | 101 mm | 26 mm | 40 mm | 240 mm | |
Teleskopický válec s okem 2-st.
TC3022F
|
9 950,19 Kč
8 223,30 Kč bez DPH
|
595 mm | Di Natale-Bertelli | 20,7 kg | Kus | 1629 |
|
415 mm | 2 | Povrchová úprava Tenifer TF1 | 2,3 l | Teleskopický válec s vývrtem v nejmenším stupni, 2-stupňový, typ TC-F | Ocel S355J2+N | 61 mm | 76 mm | 95 mm | Teleskopické | 180 BAR | Polyuretan | 0,5 m/s | 8,1 t | 40 mm | 8,1 t | 35 mm | HV5/12=500/550 | 0.05-0.15 µm | Vývrt | Radiální čep | 32 mm | 105 mm | 31 mm | 40 mm | 310 mm |