AgroBox

Pístové šoupátko 6″ s přírubou

Parametry produktu

Číslo položky 6000062
Jednotka Kus
Značka MZ
Použití Vhodné pro hnojiva s vysokým podílem sena a slámy
Vlastnosti
  • Při otevření klapka vytlačuje eventuálně zbývající zbytky sena a slámy nahoru do komory
  • Jakmile se komora naplní zbytky, klapka je tlačí směrem dolů, čímž se přidávají do kapaliny
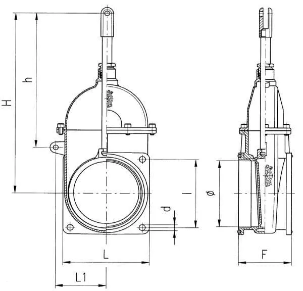
ØJmenovitý průměr průchozího otvoru 145 mm
ØJmenovitý průměr průchozího otvoru # 6 Inch
lVzdálenost montážních šroubů/otvorů příruby 150 mm
dPrůměr montážních šroubů/otvorů příruby 13 mm
FTloušťka příruby 110 mm
LCelková šířka 180 mm
HVzdálenost středu průchozího otvoru od konce páky 393 mm
hVzdálenost montážních otvorů páky (vertikální) 286 mm

7 636,07 Kč s DPH

6 310,80 Kč bez DPH

Skladem